Kolgrill Park FA Serie
Beräknad leveranstid:
Produktbeskrivning
Kolgrill ring - Robust och vandalsäker rund parkgrill med justerbart galler
Information
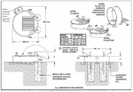
ROBUST, stöld och vandalbeständig eldstad med grillgaller i värmebeständigt svart lackerat stål.
Grillgallret kan justeras steglöst i höjd eller lutas bakåt från eldstaden, så att ett stort och säkert eldområde erhålls.
Grill- och eldstaden är gjord av mycket starkt stöldskydd- och vandalfasta material. Grillgallret är tillverkat av 13 mm massivt rundjärn, medan den runda hörnringen är tillverkad av 4,5 mm stålplåt.
Bålplatsen är fastsatt på marken med hjälp av 2 konsoler som är gjutna fast vilket minskar stöldrisken. Hängarna fungerar samtidigt som gångjärn, eftersom bålplatsen helt enkelt lutas när askan ska tas bort.
FA-serien kännetecknas också av avsaknaden av lösa eller avtagbara delar.
Denna grillplats är särskilt lämplig för offentliga parker, skolor, campingplatser.